Accueil > Foncier > Terrain constructible - 404 m² Leognan
Sous compromis Exclusivité

Terrain constructible - 404 m² Leognan

Référence : 242-2510
Prix : 179900€
Frais d'agence inclus
Ville Leognan
Surface terrain 404m²
LEOGNAN - Dans un secteur recherché, au calme.
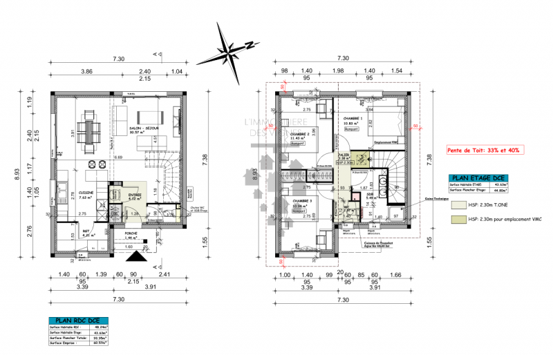
Terrain de 404m2, à viabiliser. LIBRE DE CONSTRUCTEUR
Secteur UD, emprise au sol de 20 %.
Permis déjà accordé pour la construction d'une maison (3 chambres) à étage d'une surface de 92m2.
A vos projets !
Voir nos honoraires
Si ce bien vous plaît contactez-nous
Les champs indiqués par un astérisque (*) sont obligatoires
  • PLACE MARCEL VAYSSIERE
    33650 MARTILLAC
  • contact@immobilieredesvignes.fr
  • 05 56 31 39 56